ルーフバルコニー完成予想CG

ITSUKAICHI THE TOP

空と時間を独占する、唯一にして特別な一邸。

ルーフバルコニー完成予想CG

1フロア1邸の最上階特別住戸。
空を抱くような、広大な
ルーフバルコニーのある暮らし。

朝はやわらかな陽光を浴びながら深呼吸。
昼は空を仰ぎ、風を感じ、
夜は星を眺めながらグラスを傾ける。
選ばれた住戸だけの専用ルーフバルコニーが、
一日のあらゆる瞬間を、特別な記憶に変えていきます。
ここにあるのは、ただの住まいではなく、
人生を豊かにする「場所」です。

VIEW

最上階から、街の移ろいを見届ける。
空と時間を独占する、特別な眺望。

朝は、街が目覚めていく気配を感じながら。
昼は、広がる空とともに、季節の光を受け止める。
夕暮れには、刻々と表情を変える空が、夜には、灯りをまとった街が、静かに寄り添う。
ここで過ごす一日一日が、人生の記憶として、深く刻まれていきます。

現地15階からの眺望写真
現地15階からの眺望写真
現地15階からの眺望写真

現地15階からの眺望写真

PREMIUM PLAN

室内完成予想CG

室内完成予想CG(1)

最上階は、1フロア1邸のプレミアム仕様。
贅沢な時を刻む90㎡超の
ゆとりに満ちた空間。

美意識と価値、本物と理想。
寛ぎの先にある煌めきを宿したプレミアムな一邸です。

image

image

テラスディナー

優雅な風が吹き抜けるテラスは、
ゲストを招く
スペシャルサイトに。

image

image

グランピング

ドラマチックな日常が始まる、
暮らしに溶け込む
ホームグランピング。

image

image

ワークスペース

伸びやかで開放的な空間は、
感性を高める
ワークスペースに。

image

image

ガーデニング

贅沢に降り注ぐ陽ざしのもと、
緑あふれる
プライベート庭園を創造。

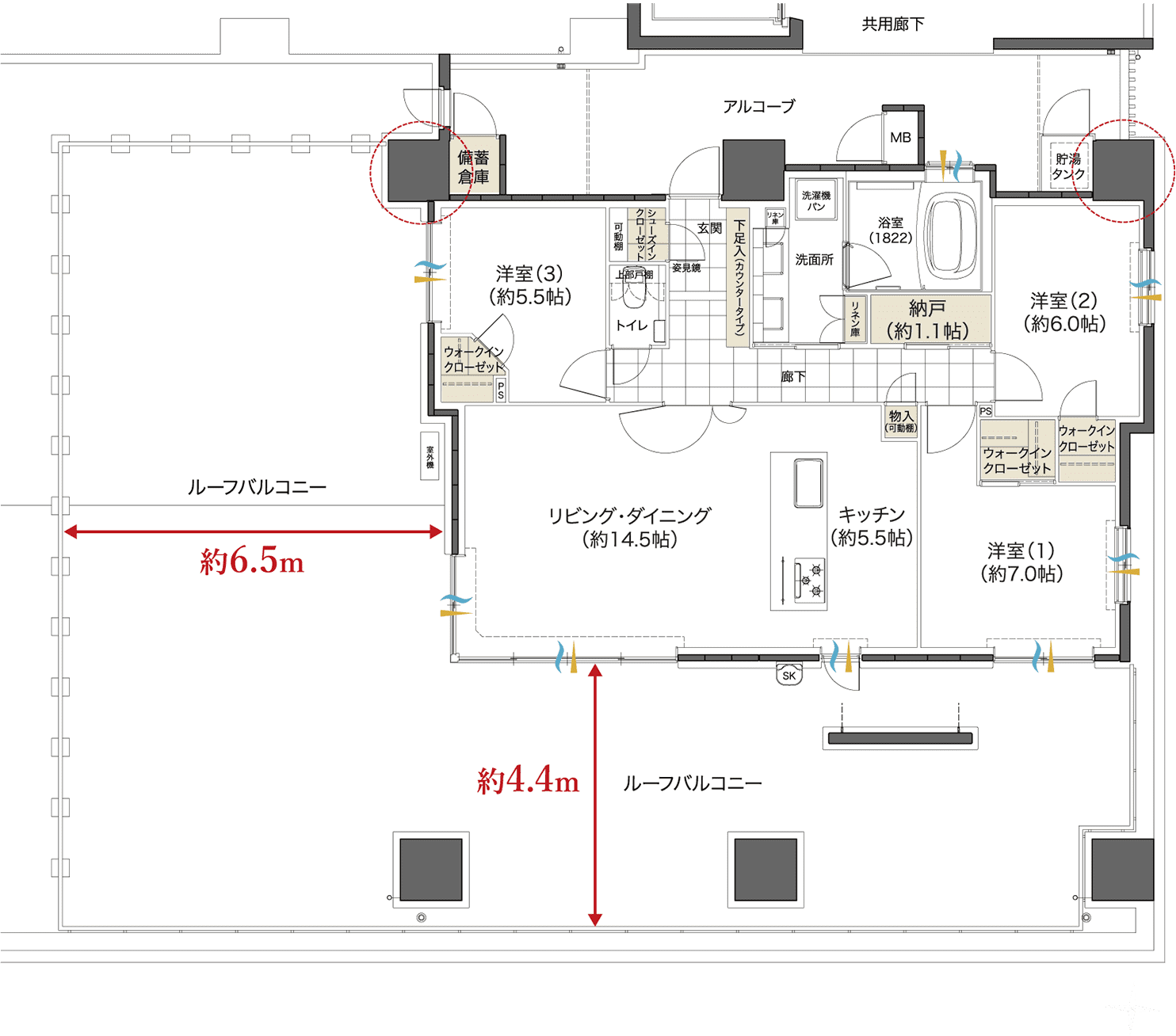
E TYPE

3LDK+3WIC+SIC+N

住居専有面積/91.35㎡(27.63坪)

ルーフバルコニー面積/134.70㎡(40.74坪)
アルコーブ面積/24.44㎡(7.39坪)
貯湯タンク面積/0.90㎡(0.27坪)
備蓄倉庫面積/1.00㎡(0.30坪)
MB面積/0.60㎡(0.18坪)

合計面積/ 252.99㎡(76.52坪)

 アウトポール設計
 通風
 採光

WIC:ウォークインクローゼット

E TYPE

最上階だけの開放感と
暮らしの質を引き上げる、
プレミアムなハイスペック仕様。

天井高 2,600mm&ハイサッシ

より高い通風性・採光性を確保し、
理想の開放感を実現します。

玄関・廊下総タイル貼り

見た目も美しく、高級感の漂う
雰囲気を演出します。

天井カセットエアコン

プレミアムな空間を保つ
天井カセット型エアコンを
リビング・ダイニングに装備します。

二重床・二重天井

将来のリフォーム等に可変性が高く、
また、下階への音に対しても気兼ねなく
お過ごしいただけます。

エレベーターセキュリティ

最上階は居住者にしか
停止できない仕様で、
高いセキュリティ性を確保します。

最上階限定の駐車場専用使用権付き

平面式なので車の出し入れも簡単、
毎日の出勤や
休日のお出かけも快適です。

備蓄倉庫

季節物や室内に保管したくないものなど、
多くの収納ができます。またいつ起こるか
分からない
災害発生時に備えて、様々な防災用品を
収納できる広さを確保しています。

フィオレストーンのキッチン天板

キッチン天板をはじめ、
細部までこだわり、キッチンを美しく
プレミアムな空間に仕上げました。

参考写真

参考写真

2ボウルの洗面台・
フィオレストーン天板

朝の忙しい時間帯などでも、
一人一人がゆとりを持って身支度を
整えられます。

参考写真

参考写真

期間限定有償

オーダーメイド感覚で
ご家族のスタイルに合わせた
プランの設計変更が可能。

間取りや内装などをオーダメイド感覚で
アレンジすることができます。

参考写真

参考写真

※掲載の写真は全てイメージ、およびメーカー参考写真です。