ルームプラン

BASIC PLAN
※お申し込みには期限があります。詳しくは係員にお尋ねください。
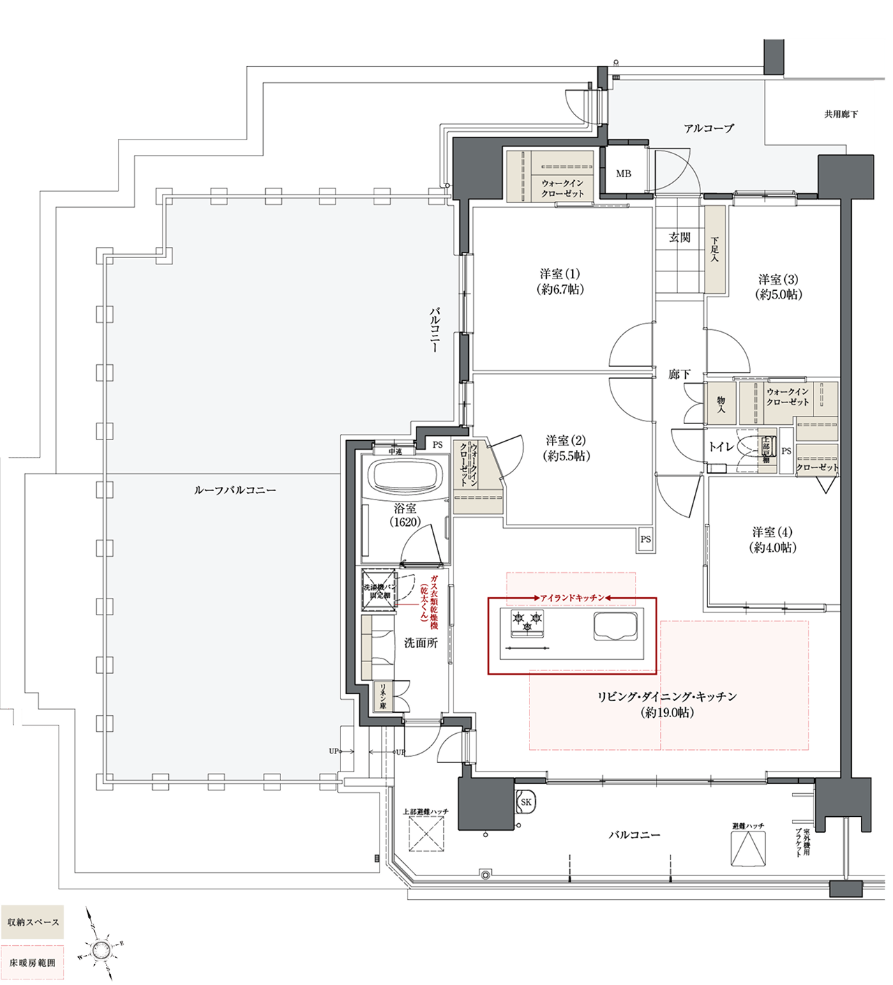
HRtype
4LDK+RB+3WIC
- 住居専有面積
- 89.39㎡(約27.04坪)
- アルコーブ面積/8.14㎡(約2.46坪)
- バルコニー面積/18.54㎡(約5.60坪)
- ルーフバルコニー面積/58.38㎡(約17.65坪)
- MB面積/0.80㎡(約0.24坪)
- 合計面積
- 175.25㎡(約53.01坪)
※RB=ルーフバルコニー
WIC=ウォークインクローゼット


BASIC PLAN
※お申し込みには期限があります。詳しくは係員にお尋ねください。
HRtype
4LDK+RB+3WIC
※RB=ルーフバルコニー
WIC=ウォークインクローゼット